Futurama Business Park
autorský popis projektu
zdroj: http://www.pesakarchitekti.cz/futurama-business-park/
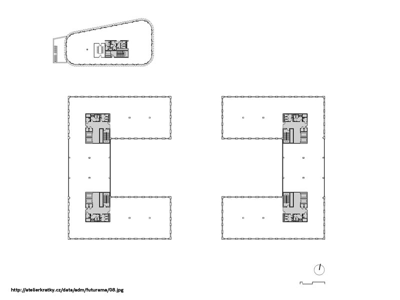
Komplex převážně administrativních budov je postupně budován od roku 2009. Je tvořen jasnou komunikační osou, ze které jsou přístupné jednotlivé objekty. Čtyři objekty o půdorysném tvaru U jsou ukončeny lineárním objektem ukončujícm areál a zároveň reagujícím na liniový obytný dům přes ulici. Domy jsou o pěti nadzemních podlažích s kancelářským provozem a jedním podzemním parkovacím podlažím. Na střechách objektů jsou odsazené hmoty strojoven. Do ulice Sokolovská je předsazen tvarově i objemově atypický „highlight“ areálu. Dvě nadzemní podlaží a jedno podzemní podlaží jsou řešena jako gastro provozy a showroom.
Dispozice kancelářských objektů je řešena tak, že vertikální komunikace schodišť a výtahů spolu se sociálním zařízením a příp. kuchyňkami tvoří kompaktní prostory v centrální části jednotlivých pater, kolem kterých je k volnému členění připravená plocha budoucích kanceláří.
Materiálově je areál charakteristický rozsáhlým použitím pohledového režného zdiva v kombinaci s velkými okenními otvory do kancelářských prostor. Objekt ukončující areál tvoří horizontálně řešené pásy fasád – skleněné parapety s potiskem a prosklené čiré plochy do kancelářských prostor. Odsazené strojovny na střechách objektů jsou opláštěny hliníkovými lamelami. Dvoupodlažní objekt při ulici sokolovská je charakteristický předsazenými obvodovými sloupy, které na výšku obou pater vytvářejí charakteristický V rastr fasády. Horizontální plochy fasády jsou v kombinaci velkoplošného prosklení a hliníkového oplechování.
Parter areálu je parkově pojednán. Hlavní komunikační osu zdůrazňuje vodní plocha s volným uměním (Zdeněk Ruffer).
Spolupráce s ing. arch. Vladimírem Krátkým na projektu Futurama Businss Park proběhla od architektonické studie po dokumentaci pro výběr dodavatele stavby.
Karlín, jó Karlín má černou duši….a dnes práci, kde si ruce od mouru a kolomazi neušpiníte…
studentská recenze projektu
Aneta Vesecká, 01/2022, U6 2021 – Vztah mezi veřejným a soukromým
Futurama – nová budoucnost městských prostorů?
Futurama bussines park je urbanisticky i architektonicky hodnotný projekt atelieru Krátký, který byl v roce 2011 realizován v lokalitě bývalých budov českého statistického úřadu Prahy 8, v bezprostřední blízkosti metra Invalidovna. Představuje administrativní komplex, jež svou půdorysnou stopou ve tvaru “U“ vytváří nenásilné a přirozené propojení dvou zcela diametrálních čtvrtí, jimiž jsou bloková zástavba z 19. století a normalizační sídliště Invalidovna. Na první pohled ke kladnému vzezření místa přispívá správně zvolená podlažnost, ale i ztvárnění fasády z režného zdiva, díky níž prostor příznivě zapadá do konceptu industriálního Karlína.
Důmyslně zvolené uspořádání budov generuje vznik nezastavěných polo-veřejných prostranství. Projekt tímto způsobem pozitivně podněcuje sociální soudržnost a svým projevem vybízí společnost k užívání, bez ohledu na majetkové vlastnictví. Prostranství jsou poměrně dobře přístupná z navazujících lokalit. Jasná hierarchie a osová členitost působí srozumitelně, což kladně ovlivňuje bezpečnost a orientaci v území. Různorodost a módní účinek podporují geometrické vodní prvky a výsadby, či kreativní mobiliář, který je navržen velmi kvalitně tak, aby prostor obohatil v každou denní dobu. Pozitivně prostředí dotváří také umění v podobě autorských betonových soch. Nelze tedy popřít, že práce s krajinou městského prostředí je nanejvýš uspokojivá.
Slabinou projektu může být nedostatečný přínos nové občanské vybavenosti. Komplex sice dobře navazuje na stávající město, ale nedostatek veřejné infrastruktury může oslabovat potenciál hojně užívaného prostředí. Stejně tak negativně se může jevit specifický primární účel komplexu, který nepředstavuje příliš vysokou adaptabilitu využití. Speciálně kancelářské prostory s plně proskleným lehkým obvodovým pláštěm by velmi těžko hledaly jiné funkce.
Futurama je koncipována jako komplex energeticky úsporných budov využívající moderní tendence uchopení problematiky změny klimatu. Pomocí tepelného čerpadla, redukcí skleněných ploch a efektivního venkovního stínění, se stává projektem velmi ohleduplným k životnímu prostředí, tíhnoucímu k ekonomické udržitelnosti. Drobným nedostatkem může být v tomto případě slabší enviromentální udržitelnost. Prověřený betonový skelet vítězí nad možností využití přírodních konstrukčních materiálů. Cihlové obklady však generují zdaleka menší uhlíkovou stopu a tím tento aspekt vyvažují.
Bezprostřední blízkost metra nevyvozuje masivní potřebu nové dopravními infrastruktury, což představuje velkou výhodu pro pěší a bezmotorovou dopravu, která v souboru staveb dominuje. Tento aspekt má kladný vliv také na pro prostupnost území, jež není zpřetrhána dopravními vazbami.
Marie Kudynová, 01/2022, U6 2021 – Vztah mezi veřejným a soukromým
Futurama – kanceláře bez života
Futurama Business Park je administrativní komplex celkem pěti kancelářských budov, nacházející se v pražském Karlíně, na místě bývalého statistického úřadu. Projekt z roku 2011obsahuje zhruba 40 000 m2 otevřených ploch využitelných jako kanceláře, ale například i showroomy, restaurace a další. Mimo samotné budovy, areál zahrnuje společnou pěší zónou se zelení, relaxačními plochami a vodními prvky.
Po architektonické i urbanistické stránce se jedná o hodnotný projekt ateliéru architekta Vladimíra Krátkého. Koncepce čtyř budov tvaru U, s atriem orientovaným ke společné ose, kterou uzavírá pátá lineární budova, navazuje na základní kompoziční schéma klasické městské karlínské zástavby a propojuje ji na západní straně areálem Invalidovny s přiléhajícími Hakenovými sady a panelovým sídlištěm z 1. poloviny 60. let dvacátého století.
Lokalita je ideální z hlediska napojení na městskou dopravní infastrukturu, díky blízkosti stanice metra Invalidovna a přímé návaznosti tramvajové třídy Sokolovská. I přes tento fakt je však patrné, že bezprostřední okolí budov je vylidněné. Hlavním problémem se zdá být nedostatek veřejné infrastruktury, vnitřní prostory jsou, alespoň prozatím, obsazeny převážně kancelářemi, ačkoli jsou dispozice dostatečně volné, aby byly naplněny i jinými funkcemi, včetně služeb, komerce, nebo občanské vybavenosti.
Přestože jsou venkovní prostory otevřeny veřejnosti, příčné ulice mezi budovami přímo nenavazují na okolní uliční síť, severojižní osu zase uzavírá lineární budova na jihu. I to může být důvodem, proč tudy lidé nevolí cestu a spíše mají tendenci areál obejít. Plochy veřejných prostranství v bezprostředním okolí budov jsou pokryty trávníky, hlavní komunikační osa je akcentována vodním prvkem – kanálem zakončeným malým vodopádem. Tato velmi čistá úprava prostředí může být mírně kontraproduktivní a působit příliš sterilně pro běžného uživatele.
Aby byl naplněn potenciál tohoto projektu, je potřeba ho více zapojit do městské veřejné infrastruktury a doplnit vnitřní prostory o další funkce. Při tak velké kapacitě je zde naděje na probuzení intenzivního využívání prostředí a vytvoření živého veřejného prostoru a místa setkávání. Je však otázkou, zda-li ještě k nějakým změnám dojde, neboť tímto způsobem komplex funguje již 10 let.
odkazy a zdroje
zdroj informací:
http://atelierkratky.cz/projekt1_futu.html
zdroj informací:
http://www.pesakarchitekti.cz/futurama-business-park/
zdroj informací:
https://www.e15.cz/clanek/magazin/futurama-business-park-bude-zeleny-979902
zdroj informací:
https://www.kancelareinfo.cz/clanek/novinky/treti-etapa-futurama-business-park-zahajena
zdroj informací:
http://idpartners.cz/cs/reference/futurama-3/
zdroj informací:
zdroj obrazové přílohy 2:
http://atelierkratky.cz/data/adm/futurama/07.jpg
zdroj obrazové přílohy 3:
http://atelierkratky.cz/data/adm/futurama/08.jpg
zdroj obrazové přílohy 4:
https://www.pragueoffices.com/wp-content/uploads/2017/10/futurama-business-park1.jpg
zdroj obrazové přílohy 10:
https://i.ytimg.com/vi/CG2L0UehCfs/maxresdefault.jpg
zdroj obrazové přílohy 12:
https://www.asb-portal.cz/wp-content/uploads/images/ilustracne/image_57019_25_v1-840×560.jpeg
zdroj obrazové přílohy 13:
https://fastly.4sqi.net/img/general/width960/23124630_IPbw5rGJdJscxZNDEHuU1YiVEAON0wRvbuSDQqAALN8.jpg
