Jízdárna Pražského hradu
autorský popis projektu
zdroj: https://www.archiweb.cz/en/b/rekonstrukce-jizdarny-prazskeho-hradu
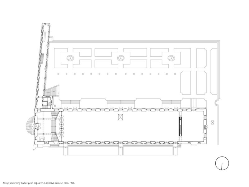
Jízdárna Pražského hradu sloužila svému původnímu účelu poměrně krátkou dobu, pouhých 103 let, dalších 150 let byla využívána jako skladový prostor. Posledních téměř 60 let plnila funkci výstavního sálu. Původně měla stavba pouze malá okna s vysokým parapetem, která byla ideální pro jízdárnu i výstavní funkci. Architekt Janák svým velkorysým návrhem, kterým otevřel stěny jízdárny mohutnými okny novým pohledům na Pražský hrad, paradoxně zhoršil podmínky pro nově budovaný účel stavby – výstavní sál. Nároky na podmínky výstavních prostorů nebyly tehdy tak přísné a Janák počítal i s víceúčelovým využitím sálu, pro které jsou výhledy a spojení s terasou přínosné.
Jízdárna může sloužit nadále jako univerzální výstavní prostor nebo jako příležitostný koncertní či společenský sál, ale pouze pokud nebudeme klást na tyto provozy nereálně přísná kritéria. Změnit Jízdárnu na dokonalý výstavní i koncertní sál, splňující plně současné nároky na technické parametry kladené na tyto prostory, je nereálné a neefektivní. Parametrů kvality vnitřního prostoru jízdárny (požadované intenzity osvětlení a oslunění, stálosti teplot a relativní vlhkosti vzduchu i zabezpečení prostoru) je možné dosáhnout pasivními nebo aktivními postupy. Projekt rekonstrukce používá obou principů v intenzitě odpovídající „rozumné“ relaci mezi současnými požadavky a stávající podobou i výjimečnou hodnotou stavby i s ohledem na investiční náklady, vynaložené na úpravu stávajícího stavu a na provozní náklady.
Zastínění oken jsme řešili pomocí dřevěných nebo textilních žaluzií a zasklením s požadovanými parametry tepelného odporu a propustnosti UV záření. Podmínky v sále zlepšuje i zateplení dřevěného stropu jízdárny. Ani při vylepšení pasivních prvků ochrany stavby nelze dosáhnout požadovaných parametrů teploty a vlhkosti vzduchu bez umělého větrání a chlazení. Projekt byl dimenzován na požadavek udržení teploty mezi 18-26 °C a 40-60 % vlhkosti vzduchu. Spotřeba energie na ohřev a chlazení vzduchu je přirozeným způsobem redukována tím, že vzduch je přiváděn až z Jeleního příkopu využitím dnes nefunkční tzv. „teplé štoly“. Zařízení VZT bylo přesto napojeno na zdroj chladu, aby bylo možné garantovat teploty i v období dlouhotrvajících extrémních teplot a zejména aby bylo možné garantovat požadovanou úpravu vlhkosti vzduchu.
Rozhodování o požadavcích na vnitřní prostředí a nepřímo i na stavební program souviselo velmi těsně s technickým řešením zateplení stropu jízdárny. Znali jsme dopady rekonstrukce Valdštejnské jízdárny, kde byla zavedena klimatizace a strop zateplen. V půdním prostoru v zimě dochází ke kondenzaci vlhkosti a tvoření námraz na barokním krovu. Na základě těchto informací jsme doporučovali sledovat méně přísné parametry a výstavní prostor používat s ohledem k této specifické stavbě. Zároveň jsme se pomocí navržené provětrávané separační dutiny mezi stropem a izolací snažili účinně ochránit dřevěnou konstrukci stropu před negativními účinky zavedení klimatizace.
Řešení umělého osvětlení, zejména výstavního, mělo své specifické problémy. Snažili jsme se prostor hlavního sálu Jízdárny nenarušit rastrem osvětlovacích lišt. Použili jsme původní Janákovy atypické lampy z měděného plechu, při repasi vybavené současnými zdroji světla a moderním ovládacím systémem. Kolem původních lamp jsme navrhli osvětlovací rampy z typových lišt, které zajišťují univerzální podmínky pro instalaci výstavního a scénického osvětlení. Při rekonstrukci v roce 1948 bylo s větší univerzálností jízdárny zřejmě počítáno. Svědčí o tom nejen měření akustických parametrů sálu, ale i velkorysost původně navrženého hygienického a šatnového zázemí, dimenzovaného evidentně na jiný účel než výstavy, které však nebylo realizováno.
studentská recenze projektu
Michal Zapletal, 01/2024 U6 2023 – Zárodky proměny Pražského hradu
Tři vrstvy
Ateliér Ladislava Lábuse vnesl svou rekonstrukcí Jízdárny Pražského hradu už třetí vrstvu úprav. Ta si vzala za cíl očistit, dotáhnout a přizpůsobit tento velkolepý prostor funkcím, které zamýšlela tehdejší koncepce Václava Havla a historická adaptace z roku 1949. Ateliér tak oživil velkorysý výstavní prostor, který může hostit i větší společenské události, včetně hudebních vystoupení, a je technologicky blíže k současným standardům vystavování uměleckých děl.
Ovšem někdejší funkce objektu jakožto jízdárny a její adaptace architektem Pavlem Janákem z roku 1949 vytvořily nelehké zadání. Prostor, který má vyhovět výstavním podmínkám současnosti a provozním požadavkům multifunkčního sálu, neměl vhodné technologické a provozní zázemí. Do sálu také na jižní fasádě pronikalo velké množství přímého slunečního záření, které by poškodilo umělecká díla a neumožnilo přísnou kontrolu vnitřního klimatu.
Řešením je citlivý kompromis mezi výstavními standardy a historickými vrstvami Jana B. Metheye i Pavla Janáka. Užití pasivních prvků, jako například zateplení valbového stropu nebo využití vysloužilé teplé štoly, umožnilo technologické zázemí vměstnat do podzemního podlaží, a tak nenarušuje celkový dojem z velkorysého sálu. Multifunkční využití prostoru ateliér L. Lábuse zaručil umístěním depozitářů a provozního zázemí právě do suterénu, který je přístupný skrze schodiště a výtah skrytý v jeden a půl metru široké příčce. Ta zároveň utváří skromnější místnost v západním konci zimní jízdárny a společně s modulárním řešením sálového osvětlení tak podporuje variabilní využití dispozic dle programu.
Stávající vrstvy byly obohacené jako důsledek extenzivního pátrání po předchozích záměrech. Jedním z důkazů jsou odkryté betonové sloupy v předsálí, které odkazují na původní záměr P. Janáka a jsou jemně doplněné o kruhový lustr přidaný L. Lábusem. Dalším příkladem je komín energocentra na severní straně zimní jízdárny, který je přidaným prvkem L. Lábuse, ale jasně odkazuje na dobu a rukopis P. Janáka.
Tvorba příjemného prostředí pro obyvatele Prahy právě na Pražském hradě byla jedním z cílů v době působení Václava Havla. Jízdárna v tomto ohledu nabízí veřejně přístupnou letní terasu s výhledem na Černínský palác, která může sloužit jako klidnější oáza před ruchem návštěvníků hradního komplexu. I její přístup po sekvenci schodišť z ulice k prašnému mostu je svým způsobem zážitek. Jen v létě zahrada na místě letní jízdárny nenabízí vhodný stín.
Možná právě úkryt před sluncem by mohl být jedním z přínosů, kdyby jízdárna a letní terasa disponovali propojením na Lumbeho zahrady a bažantnici, které v současnosti chybí a bohužel nebylo ani v minulosti součástí záměru rekonstrukce. Je to jedna z příležitostí, která by zlepšila celkovou prostupnost hradního území. Prozatím si návštěvníci jízdárny musí vystačit s kavárnou pod střechou jižního křídla letní jízdárny.
Přístupnost objektu a společenská udržitelnost se silně odvíjí od daného programu. Záměr multifunkčního výstavního sálu tyto aspekty silně podporuje, ale je vždy limitovaný daným programem, který v současnosti udává kancelář prezidenta republiky, tudíž konkrétní pořadatel. To ovšem neubírá na skutečnosti, že obnovený stavební program rekonstrukce dává volný prostor provozu pro širokou veřejnost jak kapacitou zázemí, tak možným členěním interiéru. Výstavy tak mohou být volně přístupné s minimální potřebou pro kontrolu fyzickými osobami.
Jízdárna pražského hradu v rukopisu Ladislava Lábuse je tedy nadále důležitým bodem zájmu mnoha společenských skupin, kterým poskytuje proměnlivý program ve velkolepém prostředí a umožnuje tak prožitek této památky z různých úhlů pohledu.
odkazy a zdroje
- zdroj informací: https://www.archiweb.cz/en/b/rekonstrukce-jizdarny-prazskeho-hradu
- zdroj informací: https://www.stavbaweb.cz/rekonstrukce-jizdarny-prazskeho-hradu-2409/clanek.html
- zdroj informací: https://www.earch.cz/katalog/subjekty/labus-aa
- zdroj obrazové přílohy 1: Google Earth
- zdroj obrazové přílohy 2: Google Earth
- zdroj obrazové přílohy 3: Soukromý archiv prof. Ing. Arch. Ladislava Lábuse, Hon. FAIA
- zdroj obrazové přílohy 4: Vlastní fotografie
- zdroj obrazové přílohy 5: Vlastní fotografie
