Kampus Albertov
autorský popis projektu
zdroj: : https://www.znamenictyr.cz/cs/projekt/dostavba-kampus-univerzity-karlovy-v-praze?fbclid=IwY2xjawG0KS1leHRuA2FlbQIxMAABHSy51QkImJZrtgiiN80vr0z2U6FljOQn5Cyvaw_ByjeXAnlDNGRccbkvLQ_aem_N9rpw-Wd69kT8cLwVtQxXg/
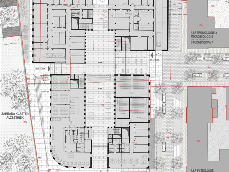
Dostavba a celkové dokončení univerzitního areálu – kampusu Univerzity Karlovy v Praze – na území pražské památkové rezervace. Záměrem je -souběžně s dostavbou dvou vědecko-výzkumných objektů/center- rehabilitace a dotvoření celého území, v rovině uličního parteru. Kampus není jen prostým souborem budov v běžném městském prostředí, ale je specifickým, živým, funkčním, promyšleným místem, inspirujícím k pobytu a setkávání lidí a myšlenek. Projekt Kampusu historicky poprvé navrhuje komplexní řešení území, včetně stanovení hranic území, návrh univerzitní správy, a veškerá témata uličního / veřejného prostoru tj. řešení povrchů, zeleně, dopravy, osvětlení, mobiliáře, orientačních systémů, drobné architektury a uměleckých prvků.
studentská recenze projektu
Gabriela Maťášová, 01/2025 U6 2024 – Praha jako 15 min město – veřejná vybavenost
Kampus Albertov – oživenie lokality
Kampus Albertov je dlho vznikajúci projekt iniciovaný Univerzitou Karlovou, ktorý vznikol na základe architektonickej súťaže z roku 2016. Výherný architektonický návrh bol vypracovaný pražskou architektonickou kanceláriou Znamení čtyř. Stavebné práce započali v apríli 2024, teda až jedenásť rokov od prvotnej myšlienky rozvoja.
Lokalita Albertov je známa svojou bohatou históriou a má jasný urbanistický charakter, preto bolo dôležité aby návrh dokázal harmonicky zapadnúť do existujúcej štruktúry, no zároveň priniesť novodobý prejav a podnietiť nový mestský život. Architekti zo Znamení čtyř túto výzvu splnili hneď na niekoľkých úrovniach. Projekt obsahuje urbanistické napojenie na okolité bloky, estetické a funkčné prepojenie fasády Biocentra s fasádou Purkyňovho ústavu, vyzdvihnutie historických hradieb, rešpektovanie výšok okolitej zástavby, obnovu aleje stromov v uliciach.
Rozšírenie kampusu prinesie značný nárast počtu ľudí, pre ktorých je potrebné vytvoriť kvalitné verejné priestranstva, miesta na pobyt, a zabezpečiť základnú vybavenosť. Takým miestom bude kaviareň, ktorá je situovaná v parteri hlavného nárožia budovy Biocentra. Kaviareň svojím sedením presahuje až do exteriéru piazzetty, ktorá je navrhnutá pred zaobleným, nárožím budovy. Piazzetta s dominantnou kruhovou kašnou a vonkajším posedením vytvorí v teplých mesiacoch atraktívny pred priestor na oddych a neformálne stretávanie. Súčasťou vybavenosti je aj stravovanie pre študentov a zamestnancov v podobe menzy, ktorá je navrhnutá v budove Globcentra. Táto časť projektu však momentálne nemá zabezpečené financovanie, čo znamená, že realizácia spomínanej menzy je odsunutá na niekoľko rokov.
Projekt kladie dôraz aj na udržateľnosť v doprave. Kampus je perfektne napojený na cyklistickú infraštruktúru, ktorá prechádza Prahou.
V dochádzkovej vzdialenosti od kampusu sa nachádza niekoľko zastávok mestskej hromadnej dopravy, konkrétne električiek. Na pozemku budú vybudované hneď tri parkovania pre bicykle, aby sa znížila závislosť užívateľov na automobilovej doprave. Súkromné parkovanie je navrhnuté v podzemnom podlaží a taktiež za budovou Biocentra, stanovište pre zdieľané bicykle je navrhnuté z bočnej strany budovy.
Biocentrum, ktoré je aktuálne vo výstavbe je ukážkou inovatívneho navrhovania pomocou moderných technológií, konkrétne BIM (Building Information Modeling). Tento systém bol kľúčovým pri riešení komplikovaného technického vybavenia budovy, keďže sa v nej budú nachádzať desiatky laboratórií, špičkových technológií a rozsiahli vzduchotechnický systém. Využitie BIM prispelo k redukcii chýb a zefektívni proces výstavby.
Osobitnou výzvou bolo vyriešenie strešnej krajiny, ktorá musí zvládnuť veľké množstvo technických vyústení. Architekti prišli s riešením, ktoré je funkčné a zároveň minimalizuje vizuálny dopad technických prvkov v podobe štyroch boxov, do ktorých je všetko vložené. Tieto boxy sú zároveň obtočené pletivom, na ktorom budú rásť popínavé rastliny.
Kampus Albertov je projekt, ktorý podľa môjho názoru s rešpektom reaguje na okolie a nielenže obohacuje architektúrou a urbanizmom mesto Prahu ale zároveň reaguje na potreby akademickej komunity a zlepší kvalitu vzdelania a vedeckého rozvoja. Lokalitu oživí kaviarňou, či nonstop študovňou a novým verejným priestranstvom na stretávanie sa.
Dominika Skubeňová, 01/2025 U6 2024 – Praha jako 15 min město – veřejná vybavenost
Citlivé dotvorenie Kampusu Albertov
Do už existujúceho kontextu kampusu Albertov bola v roku 2016 vyhlásená architektonická súťaž pre dostavbu kampusu Karlovej Univerzity. Výhercom sa stal návrh od ateliéru Znamení čtyř. Realizácia tohto projektu započala až 11 rokov po vyhlásení súťaže, na jar v roku 2024.
Albertov je známy svojou bohatou históriou a výrazným urbanistickým charaktérom. Z tohto dôvodu bol potrebný precízny prístup podmienený prirodzeným zapadnutím do štruktury, s obohatením a oživením lokality. Architekti Znamení čtyř splnili tieto požiadavky vo viacerých úrovniach.
Dvoma hlavnými prvkami návrhu je biocentrum a globcentrum, ktoré dokonale dopĺňajú žiadúce funkcie. V projekte je viditelná citlivá urbanistická napojenosť k okolitej zástavbe, ktorú si môžeme všimnúť na príklad na rešpektovaní blokovej zástavby, výšok okolitej zástavby, a na ohľaduplnosti k okolitej prírody nezasahovaním do parkov, ktoré sú pre oblasť významné.
Projekt príjemne a neinvazívne dotvára charaktér ulice aj celej oblasti a v merítku budovy aj ulice spĺňa adaptabilitu na možné iné využitie, než na ktoré je určené, vďaka jej členeniu a širšiu škálu vybavenosti v okolí. Príkladom toho je aj návrh vytvorenia pešej zóny na jeho hlavnej ose, ktorý sa v súčasnosti neuskutočňuje, ale existuje aj táto verzia, ktorá môže byť v budúcnosti uskutočnená bez
žiadnej ujmy na funkčnosť Kampusu.
V budovách biocentra a globcentra majú byť umiestnené a využívané najmodernejšie technológie pre vedu a výskum a súčasne má Kampus Albertov hodnotu A energetického štítku, vďaka ktorým bude môcť napredovať a bezproblémovo fungovať a zároveň enviromentálne nezaťažovať okolie. Pre
budúcich návštevníkov bude snaha o úspornosť a vedenie k ekologií začínať už na ulici, kde budú umiestnené nabíjačky pre elektromobily a mnoho možností na uskladnenie bicyklov a využívania cyklodopravy.
Kampus prioritne slúži študentom, vedcom a vyučujúcim vysokých škôl so zameraním na vedu a výskum Univerzity Karlovej, a preto aj po snahe vloženia kaviarne do parteru, umiestnenia zdieľaných bicyklov do Kampusu, či celkového prepojenia lokality s okolím a nevytváraním bariér, bude areál len minoritne využívaný širšou verejnosťou. V kampuse sa totiž nenachádza dostatok lákadiel na trávenie voľného času. Vytvorenie pocitu, že do kampusu sú vítaní aj nazaujatí okoloidúci, by pomohlo pretvorenie ulice Albertov na pešiu zónu.
Napriek tomu však aj pre bežných návštevníkov kampus vytvára vhodné podmienky a možnosti. V okolí sa nachádza mnoho stravovacích možností, fakultná nemocnica, botanická záhrada, parky či športoviská. V blízkosti sú aj študentské koleje, ktoré sú veľmi dôležité pre dostupnosť kampusu pre študentov. V prípade dochádzania je kampus v dostačujúcej vzdialenosti od zastávok MHD a jednoducho napojený na hlavnú tepnu cyklocesty. Autá je možné parkovať na ulici, alebo v podzemí navrhovných budov. Zároveň je umiestnený v blízkosti centra mesta.
Vďaka spomenutým faktorom je možné usúdiť, že Kampus Albertov, sa snaží vyhovieť všetkým dochádzkovým možnostiam a ponúka kľúčové podmienky pre 15 minútové mesto.
Daniela Čechová, 01/2025 U6 2024 – Praha jako 15 min město – veřejná vybavenost
Nová etapa Kampusu Albertov
Myšlienka rozšírenia Pražského Kampusu Albertov vznikla už v 90. rokoch 20. storočia, keď sa začali objavovať úvahy o potrebe modernizácie a rozšírenia výučbových a výskumných priestorov Univerzity Karlovej. Po architektonickej súťaži v roku 2015, ktorú vyhlásila Univerzita Karlova, zvíťazilo české štúdio Znamení čtyř – architekti. Ich návrh zaujal prepracovaným konceptom zapadajúcim do historického prostredia Albertova.
Projekt je financovaný predovšetkým z verejných zdrojov. Hlavným investorom je Univerzita Karlova. Budova Biocentra dostala finančnú podporu z národného plánu obnovy.
V apríli roku 2024 započali stavebné práce na budove Biocentra. Budova Globcentra je plánovaná súčasť rozšírenia Kampusu Albertov, ale jej realizácia ešte neprebieha. V súčasnosti sa projekt nachádza vo fáze plánovania, a konkrétne termíny výstavby nie sú stanovené. Budova Biocentra a Globcentra kontextuálne nadväzuje na okolie racionálnym rozmiestnením ulíc a rytmizáciou fasád historických budov. Síce sa má v budúcnosti jednať o revitalizáciu celého Kampusu Albertov, momentálne prebieha len prvá fáza realizácie, a to budova Biocentra.
Biocentrum bude slúžiť pre prepojenie troch významných fakúlt – Prírodovedeckej, Matematicko-fyzikálnej a Prvej lekárskej fakulty Univerzity Karlovej, ale zároveň je tu možná flexibilita jeho využitia prednáškových priestorov, átriá pre výstavy, alebo kaviareň, ktorá bude prepájať verejnosť s Kampusom Albertov. O celkovej flexibilite a urbanistickej adaptabilite na nové podmienky sa tu, ale
hovoriť nedá, stále ide o akademickú pôdu, kde hlavné využitie bude pre študentov, akademikov a výskumníkov a spojenie verejnosti len cez kaviareň a občasné akcie.
Budova Biocentra má byť energeticky neutrálna a mala by sa adaptovať na klimatické zmeny. Okrem Biocentra vzniká v Kampuse aj nové prepojenie cez schodisko od ulice Apolinářská, ktoré zlepší jeho dostupnosť, ktorá je už v súčasnosti veľmi dobrá. To je spôsobené samotným umiestnením Kampusu Albertov, na ktorý je priamo napojená cyklotrasa, ktorá sa tiahne popri Vltave, električkové trate a metro v dochádzkovej vzdialenosti.
Pred budovou Biocentra majú vzniknúť miesta na odkladanie bicyklov, dobíjacie stanice pre elektro bicykle a zároveň bude vybudované podzemné hromadné parkovisko. Tým pádom osová ulica Albertov, ktorá aj napriek tomu, že nebude určená výhradne pre chodcov, bude odľahčená o niekoľko parkovacích miest. Ulica Albertov by podľa môjho názoru mala slúžiť len pre chodcov a zmena povrchu terénu z asfaltu na dlažbu má naznačovať, že ide o miesto, kde motoristi by mali spozornieť. Napriek tomu to nepovažujem za kladné riešenie, keďže návštevníci budú musieť byť stále v strehu a nebudú môcť tento priestor využiť, ako voľne pobytový.
Veľkým negatívom Kampusu Albertov je jeho nedostatočná vybavenosť v oblasti stravovania a ubytovania. Dlhodobo Kampus využíva len dočasnú menzu, čo sa v dohľadnej dobe nezmení, keďže je plánovaná do dnes nerealizovanej budovy Globcentra. Ubytovanie v kampuse nie je ani plánované, čo vzbudzuje pocit nedostatočnosti areálu, ktorý má najmä slúžiť študentom.
Pražský Kampus Albertov prináša Univerzite Karlovej moderné priestory pre vzdelávanie a výskum, ktoré podporia interdisciplinárnu spoluprácu. Aj keď jeho súčasná fáza zameraná na Biocentrum neobsahuje dostatočné riešenia pre stravovanie a ubytovanie, projekt má potenciál stať sa významným centrom akademického života.
Julie Juštíková, 01/2025 U6 2024 – Praha jako 15 min město – veřejná vybavenost
Inovace pro všechny v kampusu v srdci Prahy
Projekt obnovy a doplnění kampusu na pražském Albertově skvěle zapadá mezi stávající zástavbu a navazuje na okolí a historii místa s respektem a pokorou. V současnosti se realizuje první část projektu, a to výzkumné centrum nazvané Biocentrum, navržené architektonickým studiem Znamení čtyř. Jedná se o největší stavební investici do veřejné instituce od roku 1983, kdy byla dokončena Nová scéna Národního divadla. Projekt je financován Univerzitou Karlovou a podporován Národním plánem obnovy. Nové budovy v lokalitě doplní scházející vybavenost a poskytnou potřebné prostory s vybavením, které výzkumné centrum Univerzity Karlovy posunou mezi nejlepší v současné Evropě.
Z hlediska vztahu k okolí se konkrétně realizovaná budova Biocentra odkazuje svou zaoblenou fasádou k protějšímu Purkyňovu ústavu, který zde stojí od dvacátých let dvacátého století. Zároveň ale vyšším poměrem prosklení v obvodových konstrukcích než mají stávající okolní budovy vznikají dostatečně prosvětlené moderní místnosti.
Adaptabilita funkcí budovy Biocentra se nehodnotí snadno vzhledem k specifičnosti výuky, na kterou je potřeba atypických a vysoce specializovaných prostor. Laboratoře mají přísné hygienické normy, ze kterých v podstatě vyplývá vzhled učeben. Z dostupných vizualizací místnosti je zřejmé, že působí dostatečně prostorně a jsou akusticky dobře navržené – což je u výuky jeden z hlavních faktorů posuzování. Zdá se mi z vlastní zkušenosti, že vysoké propojení učebny s veřejným prostorem pomocí prosklených ploch, které jeden z autorů projektu zdůrazňoval, nemusí studentům vyhovovat, jelikož se potřebuji na výuku soustředit a toto propojení vytváří riziko jejich rozptýlení a odpoutání pozornosti od přednášené látky.
Oceňuji vytvoření a propojení veřejných prostor vně navrhovaných budov. Z projektu jsem vypozorovala navázání na nynější tendence rozšiřování prostorů pro pěší a také propojení vícero výškových úrovní v rámci atria Biocentra. Zkušení architekti se s tímto aspektem vypořádali chvalitebně a pokud bude ohlídáno skutečné provedení, tak může tento prostor přinést velice příjemné místo do oblasti, kde jich není mnoho.
Přestože je v oblasti umožněn bezproblémový průjezd automobily a mnoho lidí sem dojíždí pomocí osobních automobilů, je kampus dobře napojen na veřejnou dopravu, a tak nabízí návštěvníkům možnost využití jiného typu dopravy, než je právě osobní automobilová. Vybízí tak návštěvníky areálu k využití pěší nebo cyklo dopravy. V tomto ohledu si myslím, že areál nepotřebuje změny ani úpravy a ani projekt samotný se tímto až tolik nezabýval. Plánované budovy do areálu jistě přivedou více osob, ale výrazná změna z hlediska dopravní infrastruktury nejspíše nenastane.
I po rozhovoru se studentkou lékařské fakulty, která stávající areál pravidelně navštěvuje již několik let a která se na plánované změny v kampusu již těší, nemohu hodnotit projekt jinak než kladně. Jistě bude mít pozitivní vliv na oblast Albertova a zpříjemní všem návštěvníkům studium, práci nebo pobyt v tomto areálu.
odkazy a zdroje
- zdroj informací:
https://www.znamenictyr.cz/cs/projekt/centra-pro-vedu-vyzkum-univerzity-karlovy-v-praze-biocentrum
- zdroj informací:
- zdroj informací:
https://www.dveprahy.cz/
- zdroj informací:
https://kampusalbertov.cuni.cz/KA-1.html
- zdroj obrazové přílohy 3:
https://www.znamenictyr.cz/cs/projekt/centra-pro-vedu-vyzkum-univerzity-karlovy-v-praze-biocentrum
- zdroj obrazové přílohy 4:
https://www.znamenictyr.cz/cs/projekt/centra-pro-vedu-vyzkum-univerzity-karlovy-v-praze-biocentrum
- zdroj obrazové přílohy 5:
https://www.znamenictyr.cz/cs/projekt/centra-pro-vedu-vyzkum-univerzity-karlovy-v-praze-biocentrum
