Prezidentská vila - adaptace «domečku»
Projekt rekonstrukce rezidence v Královské zahradě představuje významný krok směrem k modernizaci a adaptabilitě urbanistického prostoru. S ohledem na původní využití, architektonické dědictví a vliv na českou krajinu se očekávalo, že projekt bude nejen estetickým přínosem, ale také schopností přizpůsobit se měnícím potřebám společnosti a prostoru.
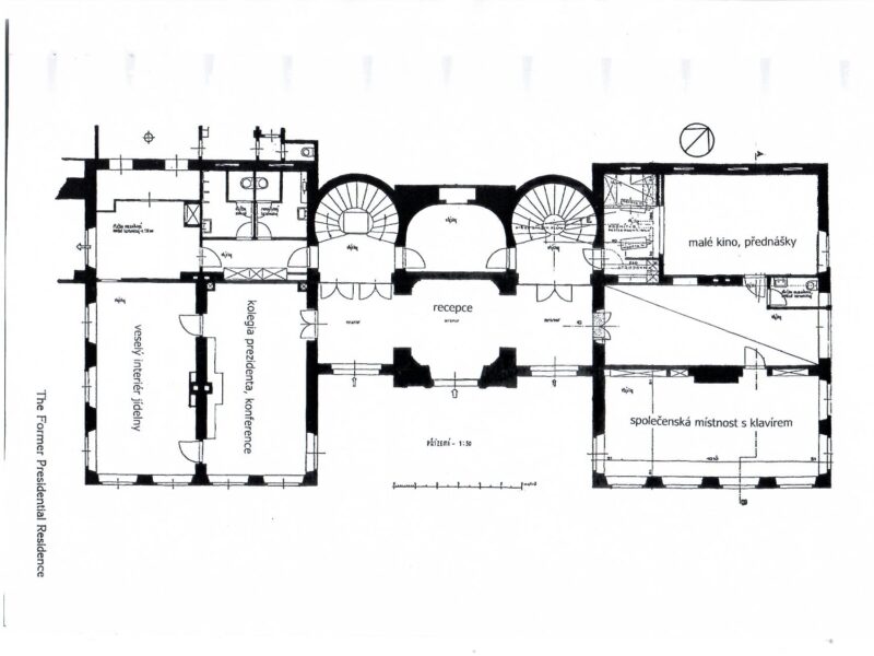
Projektční práce nad rekonstrukcí rezidence v Královské zahradě se stala klíčovým milníkem v obnově kulturních a historických hodnot v rámci prostoru rezidence pro prezidenta na Hradě. Předkládaná vize a realizace této rekonstrukce oživují architektonický skvost a naplňují funkci kulturního a společenského centra, i když přístup není otevřený vždy všem žádoucím a bývá fyzický přístup do Královské zahrady omezen většinu roku.
Jedním z klíčových prvků projektu je respekt k historickým hodnotám. Rekonstrukce není pouze restaurováním zdí a oken, ale citlivou obnovou každého detailu s ohledem na minulost. Architektura, vzešlá z pera Pavla Janaka a následně citlivě doplněná podle soudobých požadavků Miroslavem Masákem, je nejen zachována, ale i zdůrazněna a přizpůsobena moderním standardům.
Transformace prostoru přináší rezidenci jako kulturní a společenské centrum, kde se prolínají různé aspekty umění, vzdělání a setkávání nejen v rámci České republiky, ale i celého světa. Adaptabilita využití představuje rezidenci jako multifunkční prostor, schopný přizpůsobit se různým kulturním a společenským potřebám.
Vývoj projektu zahrnuje citlivou restauraci historických hodnot a vytvoření unikátního prostoru, kde se minulost prolíná s moderními standardy. Otevření projektu pro veřejnost by mohlo posílit jeho kulturní a společenský význam, ačkoliv je třeba zdůraznit, že některé omezení přístupu mohou snižovat jeho dostupnost a využití pro celou komunitu.
Celkově lze konstatovat, že rekonstrukce rezidence v Královské zahradě přináší nejen restaurování architektonického skvostu, ale i jeho nový význam ve veřejném a kulturním životě. Jednotlivé prvky projektu – respekt k historii, transformace prostoru, adaptabilita využití a urbanistický význam – společně tvoří harmonický celek, který zve návštěvníky k objevování minulosti a současnosti v jedinečném kulturním prostoru Královské zahrady.
