Parkview
autorský popis projektu
zdroj: https://cuboid.cz/cs/projekty/vse/parkwiev-praha/
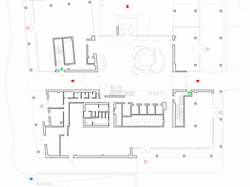
Parkview je administrativní budova, umístěna na západní straně soudobého centra pankrácké pláně v Praze 4. Spolu s objekty City Green Court a City Tower vytváří komorní městský prostor náměstí, otevřeného do parku. Budova má tvar U, jižní, východní a západní křídlo obklopují monumentální veřejné vnitřní atrium, jehož součástí je zapuštěné, dřevem obložené sezení. Do atria se obrací schodiště, výtahy i patrové galerie spojující jednotlivá administrativní křídla. Budova má tři podzemní a devět nadzemních podlaží. V podzemí jsou umístěny garáže a technické zázemí budovy. V nadzemních podlažích jsou kancelářské prostory, situované podél vnějších i vnitřních fasád budovy. Střešní zahrada s terasou nabízí výhledy do dalekého okolí. Budova Parkview získala v prosinci 2020 mezinárodní certifikaci LEED na úrovni Platinum, která posuzuje její vliv na životní prostředí. Získala i certifikát WELL, hodnotící celkovou pohodu uživatelů a certifikát WELL Health-Safety Rating.
studentská recenze projektu
Mikuláš Valdman, 01/2022, U6 2021 – Vztah mezi veřejným a soukromým
Uvážlivé doplnění Pankrácké pláně administrativní perlou
Administrativní budova Parkview na Pankráci navazuje na dvojici domů od stejného architektonického týmu, v jejichž pomyslném středu tak dotváří pocitově městský prostor náměstí uprostřed administrativního bloku. Budova zachovává výrazové prvky svých dvou sousedů a prostředí mezi City Green Court, City Tower a Parkview proto působí sjednoceně a architektonicky čistě. Fasáda je ztvárněna umírněně kombinací plných bílých a prosklených panelů. Výškově je Parkview shodné s protější budovou City Green Court, se kterou tak vytváří pocitové předpolí pro hlavní hmotu této trojice, City Tower. Budova ani v širším kontextu místa nepůsobí rušivě a trojice domů jako by byla přirozeným vrcholem kolem ležící panelové zástavby. Všechny tři domy respektují ohraničení pentagonu ulicemi Pujmanové a Hvězdova, podél kterých vytvářejí uliční čáru, jež se za budovou Parkview vytrácí směrem k jedné z dominant Pankrácké pláně, budově V-tower. K té se Parkview staví zády a zatímco na severu je velkoryse otevřená veřejnosti přístupným vzdušným atriem do prostoru rádoby náměstí, na jihu dává svým opomíjením vzniknout kvazi veřejnému prostoru, který ve své neurčitosti imituje formu parku, jehož funkce je ale okleštěna regulacemi danými soukromým vlastnictvím pozemků přilehlých k patám budov. A tak zde na líbivě udržovaných a k pikniku vybízejících trávníčcích nalezneme cedulky zakazující vstup na travnatou plochu nebo kouření v celém širém okolí.
Parkview je klasickou budovou administrativního účelu s obchodními jednotkami v přízemí a velkorysým atriem ve svém středu. To se přes prosklenou fasádu prolíná s přilehlým náměstním prostorem, které dále navazuje na park Na Pankráci. Celá budova je se svým propojením se zelení důsledná i v použitých technologiích a hospodaření s dešťovou a pitnou vodou, které ušetří až 40% ročně. Budova se řadí mezi špičku současné kancelářské produkce a splňuje ty nejvyšší technologické a ekologické standardy, díky čemuž získala certifikaci LEEDS, která vedle atraktivního umístění a výhledů na panorama Prahy zvedá prestiž celého projektu a jeho faktickou hodnotu.
odkazy a zdroje
zdroj informací:
https://cuboid.cz/cs/projekty/vse/parkwiev-praha/
zdroj informací:
https://www.archiweb.cz/b/parkview
zdroj informací:
https://meierpartners.com/project/parkview-office-building
zdroj obrazové přílohy 1:
——– doplnit——–
zdroj obrazové přílohy 2:
——– doplnit——–
zdroj obrazové přílohy 3:
——– doplnit——–
zdroj obrazové přílohy 4:
——– doplnit——–
zdroj obrazové přílohy 5:
——– doplnit——–
